
סוג
היכלי תרבות ואמנות
עיצוב פנים
מיקום
להבים





היכל תרבות ומרכז תעסוקה –
מועצה מקומית להבים ומועצה אזורית בני שמעון
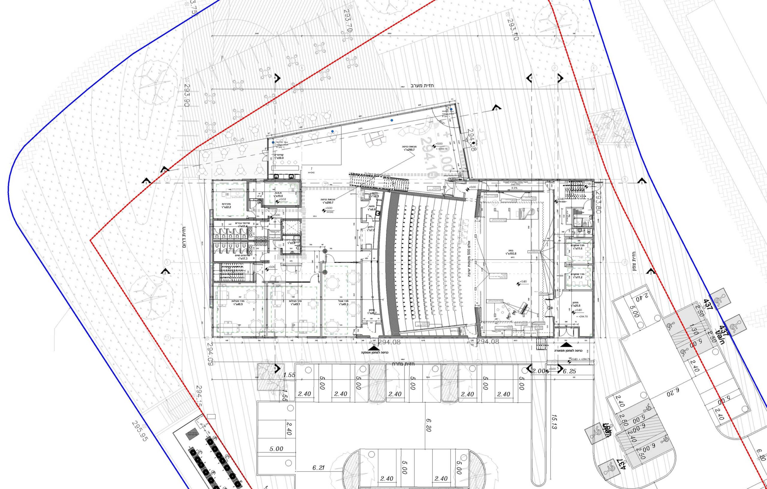
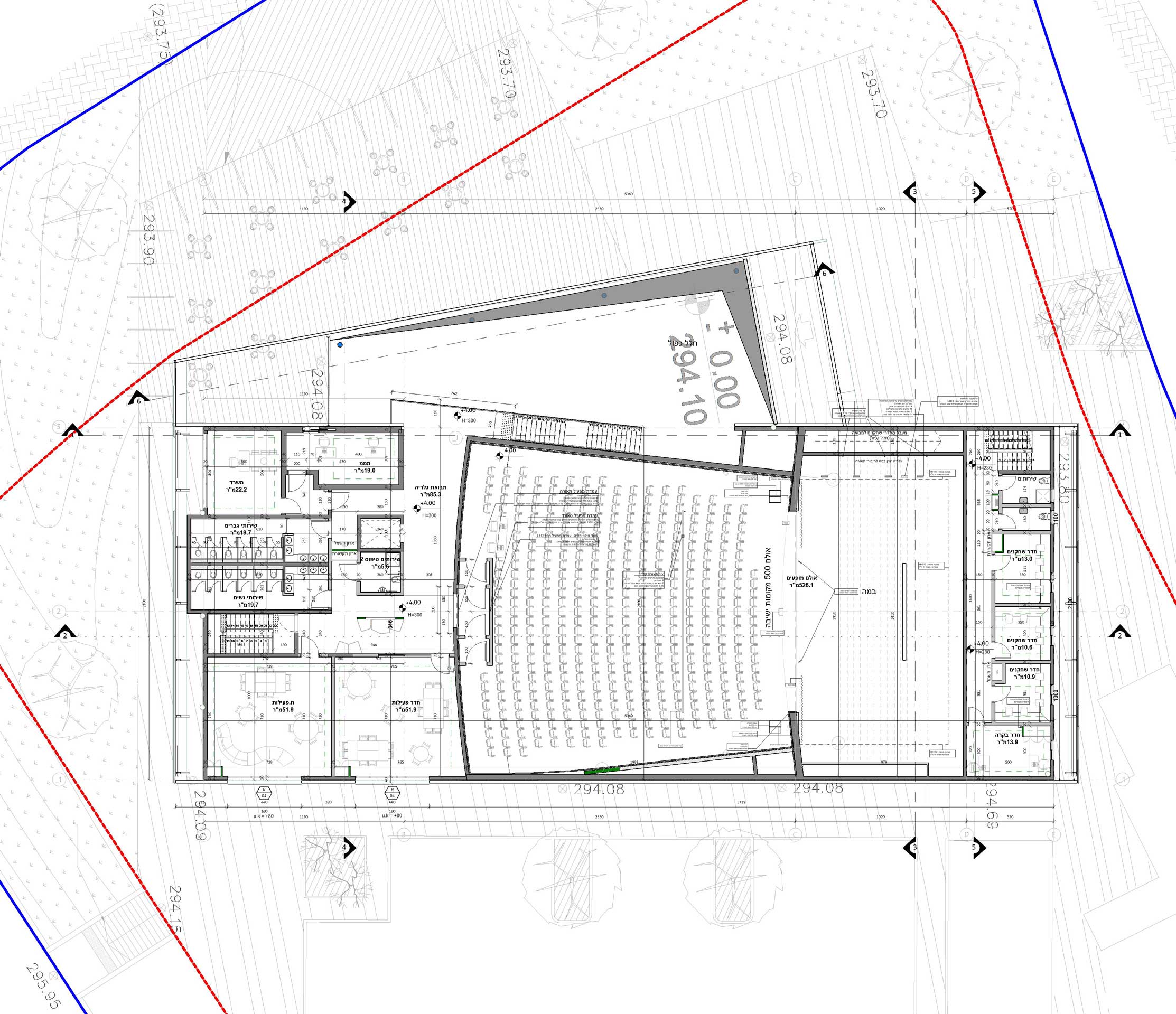
בלב יישוב הנגב מתוכנן היכל תרבות ותיאטרון 500 מקומות ישיבה בשטח 1,700 מ"ר.
תכנון המבנה מאפשר חללים לפעילויות שונות ומגוונות בכל שעות היום ומרכז המשלב תעסוקה ופעילות לצעירים בתפקוד גבוה ובינוני.
מתוכננת קפיטריה שתופעל ע"י הצעירים ותשמש את הציבור הרחב בתוך ומחוץ למבנה כולו.

קומת קרקע

קומת גלריה

תכנית פיתוח
אדריכלים: אמיל מיטראה וגל איפן
עיצוב פנים: אדריכל אמיל מיטראה וגל איפן
קונסטרוקטור: שעיה גליסקי
פיתוח: אברהם אילן
תנועה: י.ט הנדסה
יועץ במות: דרור הרנזון
חשמל: מטרה וט
מיזוג ואינסטלציה: אוסאמה פרח
בטיחות ונגישות: נועם מימון
אקוסטיקה: רז אור הנדסה